MJEŠOVITO građ. zemljište 400 m od mora
Prodaje se atraktivno građevinsko mješovito zemljište sa svom infrastrukturom na…
€1,105,500
23234 Vir, Zadarska, Hrvatska
prodaja
€185,000
















































VIR – TOROVI
NOVOGRADNJA 2025. – trosoban apartman s velikim vrtom i 2 parkirna mjesta
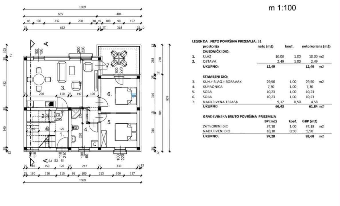
U mirnom dijelu otoka Vira, predio Torovi, prodaje se moderan apartman smješten u prizemlju manje stambene zgrade. Ukupna neto površina stambenog dijela iznosi cca 66 m² (neto korisne 61,84 m²).
Raspored prostorija:
-ulazni prostor
-spremište / ostava
-hodnik
-prostrani open space: kuhinja + blagovaonica + dnevni boravak (29,50 m²)
-dvije udobne spavaće sobe
-kupaonica
-natkrivena terasa – idealna za jutarnju kavu i večernja druženja
Apartmanu pripada:
-dvorište površine 17,40 m²
-vrt površine 83,10 m² – dovoljno mjesta za roštilj, dječje igralište, jacuzzi ili mali bazen
-dva vanjska parkirna mjesta
Lokacija:
Predio Torovi jedan je od traženijih dijelova Vira zbog mirnog okruženja, obiteljskih kuća i blizine plaža. Udaljenost do mora i plaža iznosi cca 600 do 1000 m (ovisno o konkretnoj poziciji), a u blizini se nalaze trgovine, ugostiteljski objekti i svi sadržaji potrebni za ugodan odmor ili cjelogodišnje stanovanje.
Oprema i gradnja:
-klimatizacija
-PVC stolarija s ugrađenim komarnicima i roletama
-električno podno grijanje u kupaonici
-kvalitetna keramika i sanitarije
Dokumentacija je uredna – objekt je završen i u postupku je etažiranje, te ishođenje uporabne dozvole.
Moguća kupnja putem stambenog kredita.
Svim našim kupcima osiguravamo BESPLATNO kreditno posredovanje u postupku ishođenja stambenog kredita.
Za sve dodatne informacije kao i dogovor oko razgledavanja nazovite 098/504-356 ili pošaljite mail: ivica.pozgaj@libela.hr .
—————————————————————————–
VIR – TOROVI
NEW BUILD 2025 – three-room apartment apartment with large garden and 2 parking spaces
In a quiet part of the island of Vir, in the Torovi area, a modern apartment is for sale, located on the ground floor of a small residential building. The total net living area is approx. 66 m² (net usable area 61.84 m²).
Layout:
-entrance hall
-storage room / pantry
-corridor
-spacious open space: kitchen + dining area + living room (29.50 m²)
-two comfortable bedrooms
-bathroom
-covered terrace – ideal for morning coffee and evening gatherings
The apartment includes:
-courtyard of 17.40 m²
-garden of 83.10 m² – plenty of space for a barbecue, children’s playground, jacuzzi or a small pool
-two outdoor parking spaces
Location
The Torovi area is one of the most sought-after parts of Vir due to its peaceful surroundings, family houses and proximity to the beaches.
The distance to the sea and beaches is approx. 600–1000 m (depending on the exact position), and nearby you will find shops, restaurants and all amenities needed for a pleasant holiday or year-round living.
Equipment and construction:
-air conditioning
-PVC windows with integrated mosquito nets and shutters
-electric underfloor heating in the bathroom
-high-quality tiles and sanitary ware
All documentation is in order – the building is completed and the process of registration of condominium ownership and obtaining the occupancy permit is underway.
Purchase via housing loan is possible.
We provide FREE loan brokerage services to all our clients in the process of obtaining a housing loan.
For all additional information and to arrange a viewing, please call
+385 98/504-356 or send an e-mail to ivica.pozgaj@libela.hr.
—————————————————————————–
VIR – TOROVI
NEUBAU 2025 – Dreizimmerwohnung mit großem Garten und 2 Stellplätzen
In einem ruhigen Teil der Insel Vir, im Ortsteil Torovi, steht eine moderne Wohnung zum Verkauf, gelegen im Erdgeschoss eines kleineren Wohngebäudes. Die gesamte Netto-Wohnfläche beträgt ca. 66 m² (netto Nutzfläche 61,84 m²).
Raumaufteilung:
-Eingangsbereich
-Abstellraum / Speisekammer
-Flur
-großzügiger Wohnbereich: offene Küche + Essbereich + Wohnzimmer (29,50 m²)
-zwei komfortable Schlafzimmer
-Badezimmer
-überdachte Terrasse – ideal für den Morgenkaffee und gesellige Abende
Zur Wohnung gehören:
-Hoffläche von 17,40 m²
-Gartenfläche von 83,10 m² – ausreichend Platz für Grill, Kinderspielplatz, Whirlpool oder einen kleinen Pool
-zwei Außenstellplätze
Lage:
Der Ortsteil Torovi gehört zu den gefragteren Lagen auf Vir, aufgrund der ruhigen Umgebung, der Einfamilienhäuser und der Nähe zu den Stränden.
Die Entfernung zum Meer und zu den Stränden beträgt ca. 600–1000 m (je nach genauer Lage). In der Nähe befinden sich Geschäfte, Restaurants und alle Infrastruktur, die man für einen angenehmen Urlaub oder ganzjähriges Wohnen benötigt.
Ausstattung und Bauweise:
-Klimaanlage
-PVC-Fenster mit integrierten Insektenschutzgittern und Rollläden
-elektrische Fußbodenheizung im Badezimmer
-hochwertige Fliesen und Sanitärausstattung
Die Unterlagen sind in Ordnung – das Gebäude ist fertiggestellt, die Begründung von Wohnungseigentum sowie die Erteilung der Nutzungsbewilligung sind im Gange.
Ein Kauf mittels Wohnkredit ist möglich.
Allen unseren Kunden bieten wir KOSTENLOSE Kreditvermittlung im Rahmen der Beantragung eines Wohnkredits an.
Für weitere Informationen und zur Vereinbarung eines Besichtigungstermins rufen Sie bitte an +385 98/504-356 oder senden Sie eine E-Mail an ivica.pozgaj@libela.hr.
Prodaje se atraktivno građevinsko mješovito zemljište sa svom infrastrukturom na…
€1,105,500
Posredujemo u prodaji apartmana površine 50,60 m2 nadomak centra u…
€179,000
© 2023. | Sva prava pridržana | Libela
Owning a home is a keystone of wealth… both financial affluence and emotional security.
Suze Orman