građevinsko zemljište u Novom Selu Rok, 962 m2
Na prodaju je građevinsko zemljište u Novom Selu Rok, površine…
€20,000
10020 Novi Zagreb - zapad, Grad Zagreb, Hrvatska
prodaja
€253,620














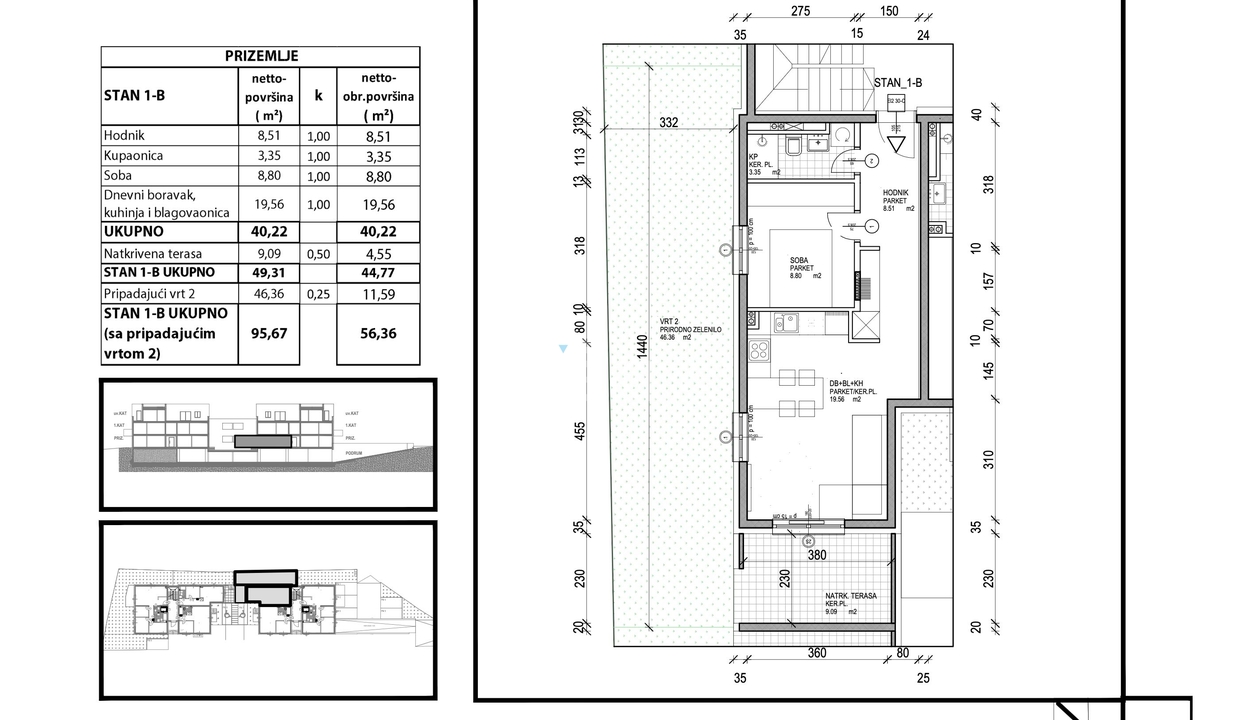
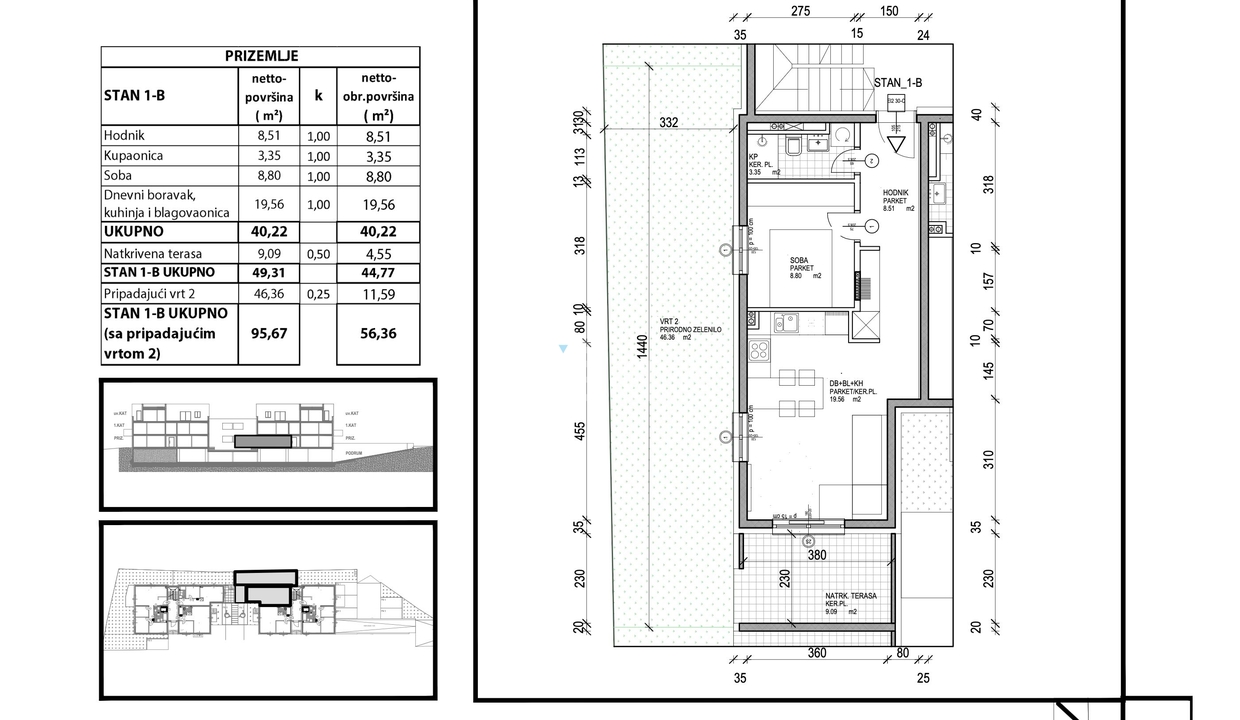
Prodaje se dvosoban stan površine 56,36 m2 u prizemlju novogradnje s liftom. Ova moderna boutique zgrada ima 16 stanova na tri etaže, a nalazi se na Karlovačkoj cesti u neposrednoj blizini Arene Zagreb.
Prednost lokacije je blizina škole, vrtića, javnog prijevoza i svih ostalih sadržaja bitnih za kvalitetan i ugodan život. Odličan izbor za obiteljski život ili investiciju.
Stan 1-B sastoji se od dnevnog boravka s blagovaonicom i kuhinjom, spavaće sobe, kupaonice, hodnika, natkrivene terase i vrta.
Planirani datum useljenja: kraj 2026.
Kratki tehnički opis:
U gradnji i opremanju se koriste vrhunski materijali u izvedbi renomiranog izvođača radova.
Armirano betonska konstrukcija: temeljna ploča 50 cm, međukatna konstrukcija 20 cm, vanjski i razdjelni zidovi 20 cm
15 cm termo fasada
Ravni neprohodni krov
HST Troslojna 6 komorna PVC stolarija s komarnicima
Protuprovalna vrata
Prvoklasni parket i pločice
Klima
Grijanje: dizalica topline
Lift kroz sve etaže
Očekivani energetski razred A+
Orijentacija: SZ-JZ
Parking: Garažno parkirno mjesto ili vanjsko parking mjesto
Visina stropa: 260 cm
Uvjeti kupnje: Obavezna kupnja garažnog ili vanjskog parkirnog mjesta
Cijena: 253.620€
Svim svojim kupcima osiguravamo BESPLATNO kreditno posredovanje u ishođenju stambenog kredita.
Sve dodatne informacije kao i dogovor oko razgledavanja nekretnine možete dobiti pozivom na broj:
099/6655767 – Krunoslav Črep
”LIBELIN ŠTREBERAJ”
Želite znati više o tajnama tržišta nekretnina? Zanima vas koliko iznosi kapara, ili kako kupiti nekretninu putem kredita i slične teme?
Otkrijte sve to i još mnogo više u “LIBELINOM ŠTREBERAJU”.
Kliknite na link i započnite svoje istraživanje: Libelin Štreberaj.
#lanište #blato #karlovačka #arena #novizagreb #remetinec #kupnjastana
PDV uključen u cijenu
Na prodaju je građevinsko zemljište u Novom Selu Rok, površine…
€20,000
Posredujemo u prodaji 4 luksuzna apartmana u novogradnji na otoku…
€400,000
© 2023. | Sva prava pridržana | Libela
Owning a home is a keystone of wealth… both financial affluence and emotional security.
Suze Orman