**NOVOGRADNJA** apartman u Reljanima, 66,26m2
NOVOGRADNJA 2025. U prizemlju zgrade smjestio se manji…
€198,800
Stenjevec, Grad Zagreb, Hrvatska
prodaja
€391,643









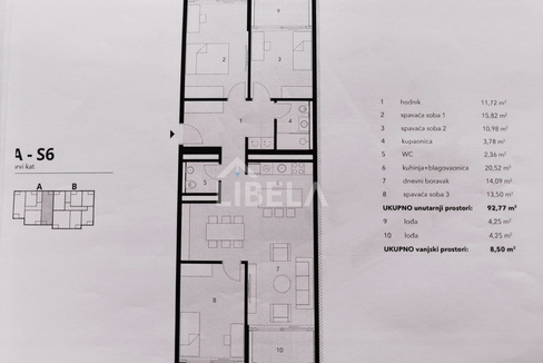
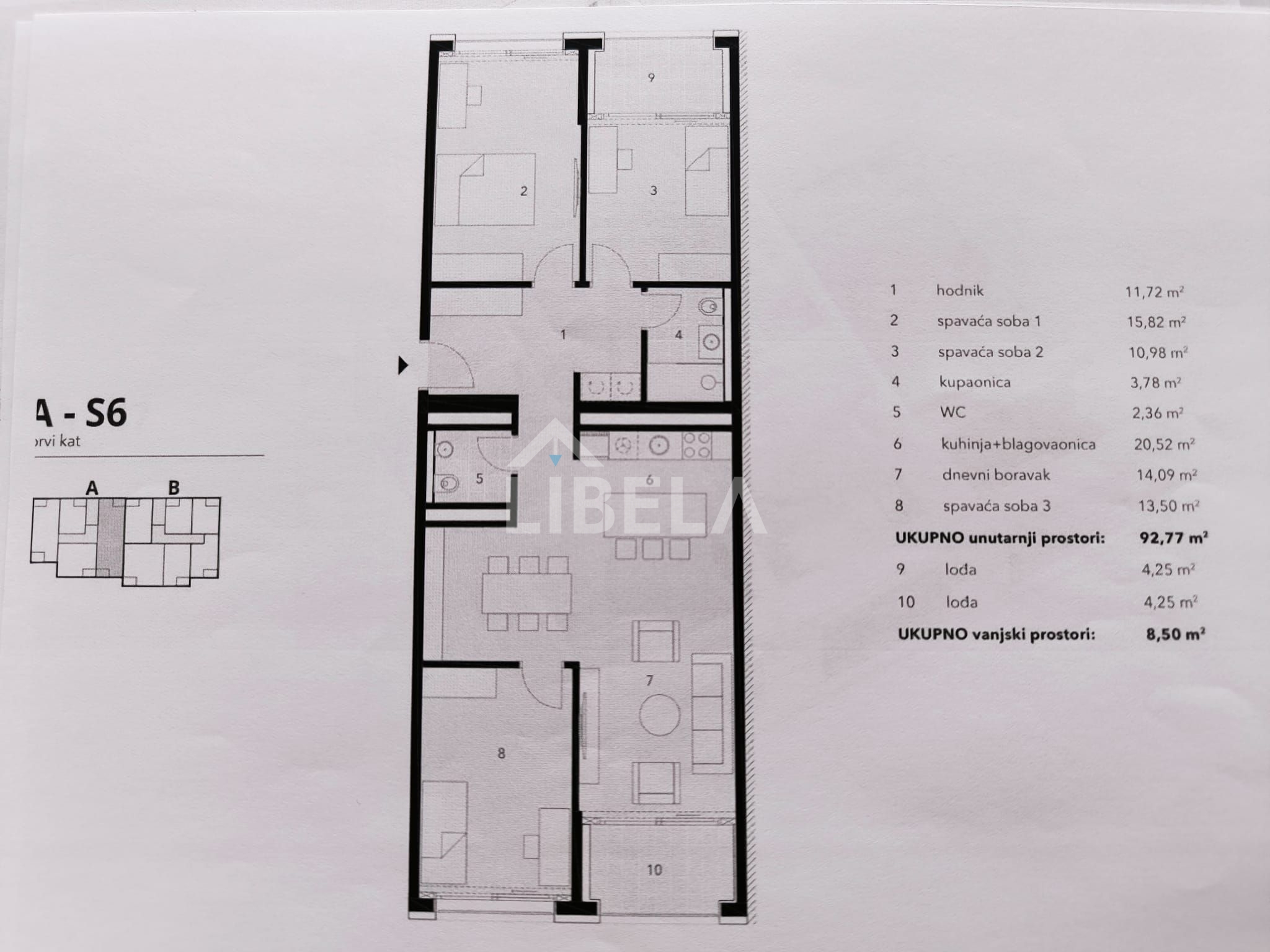
STAN A6, NOVOGRADNJA, PRODAJA, ZAGREB, STENJEVEC, 99,15 m2, 4-sobani
Planirani rok useljenja: 2027. godine.
Prodaje se dvosoban stan površine 99,15 m2 na 1 katu zgrade . Zgrada ima 2 kata i nalazi se u zagrebačkom naselju Stenjevec.
Stan se sastoji od dnevnog boravka s blagovaonicom i kuhinjom, 3 spavaće sobe, kupaonice s wc-om, wc, hodnika, te 2 loggie.
Stan se nalazi na odličnoj lokaciji, u neposrednoj blizini javnog prijevoza, trgovina, ugostiteljskih obrta, banaka, osnovne škole, vrtića, doma zdravlja, crkve i tržnice.
Cijena: 381728 EUR
Svim svojim kupcima osiguravamo BESPLATNO kreditno posredovanje u ishođenju stambenog kredita.
Sve dodatne informacije kao i dogovor oko razgledavanja nekretnine možete dobiti pozivom na broj:
091/5231454 – Marjan
”LIBELIN ŠTREBERAJ”
Želite znati više o tajnama tržišta nekretnina? Zanima vas koliko iznosi kapara, ili kako kupiti nekretninu putem kredita i slične teme?
Otkrijte sve to i još mnogo više u “LIBELINOM ŠTREBERAJU”.
Kliknite na link i započnite svoje istraživanje: Libelin Štreberaj.
PDV uključen u cijenu
NOVOGRADNJA 2025. U prizemlju zgrade smjestio se manji…
€198,800
Prodaje se ugostiteljski objekt – bivši riblji restoran u strogom…
€730,000
© 2023. | Sva prava pridržana | Libela
Owning a home is a keystone of wealth… both financial affluence and emotional security.
Suze Orman