Prodaje se Izletište-kuća Lović Prekriški sa zemljištem 7000m2
Izletište u Lović Prekriškom na južnim obroncima Parka prirode Samoborsko…
€149,000
10410 Velika Gorica, Zagrebačka, Hrvatska
prodaja
€330,655









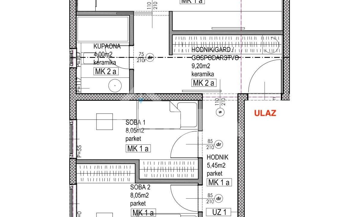
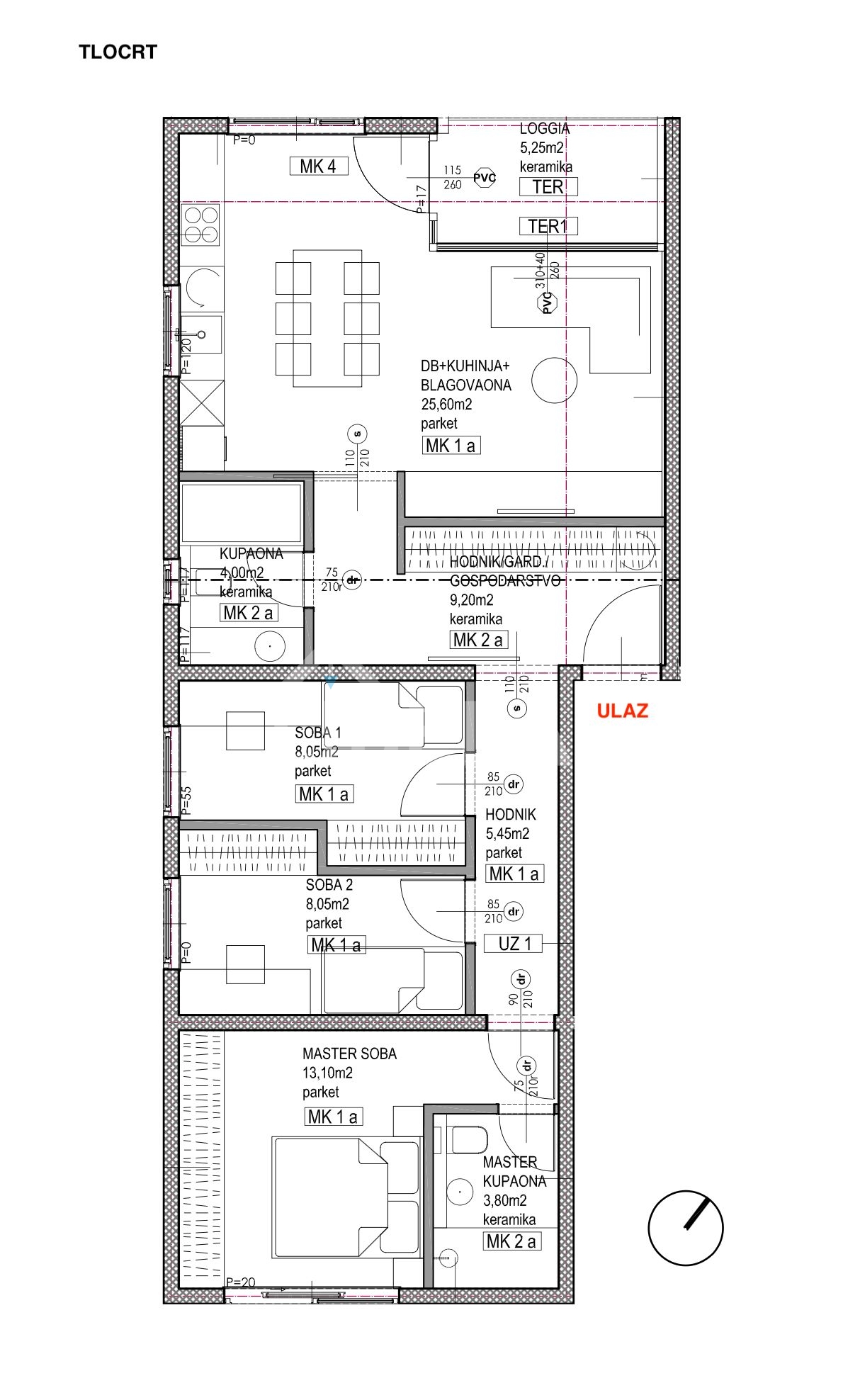
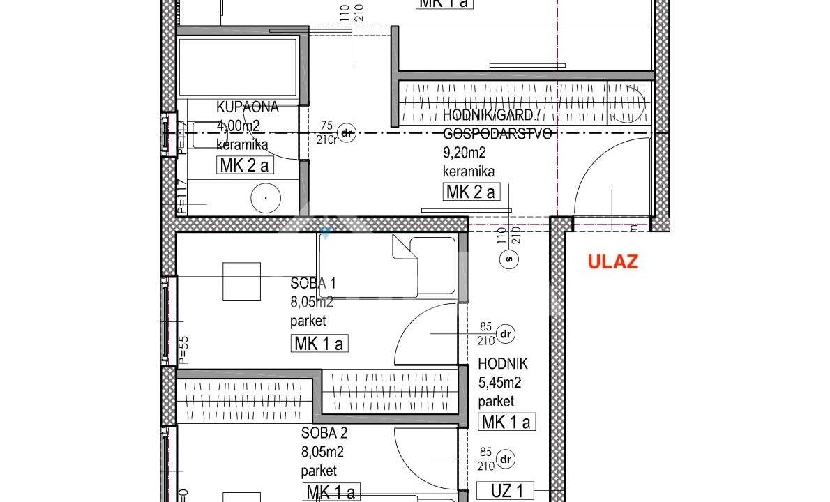
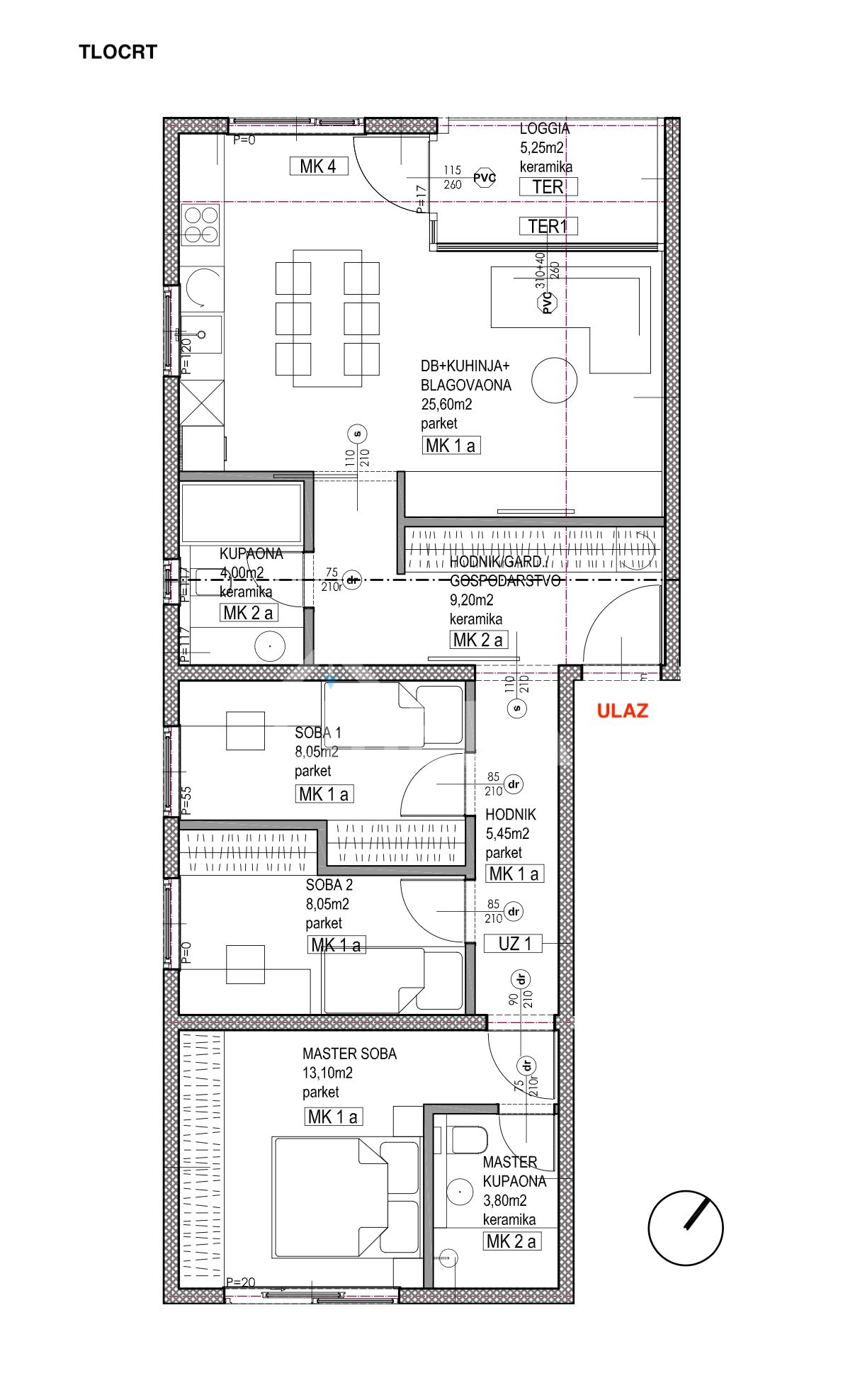
Prodaje se četverosobni stan neto obračunske površine 101,74 m2 na 1. katu novogradnje bez lifta.
Useljenje je predviđeno za jesen 2026. godine.
Stan B-S2 sastoji se od dnevnog boravka s kuhinjom i blagovaonicom, 3 spavaće sobe, 2, kupaonice, ulaznog hodnika, hodnika i loggie. Stanu pripadaju spremište, garaža i vanjsko parkirno mjesto u prizemlju zgrade.
Zgrada se sastoji od 3 etaže, prizemlja, 1. i 2. kata. Sadrži 4 stambene jedinice. Smještena je u Sisačkoj ulici širem centru Velike Gorice, u blizini svih sadržaja bitnih za ugodan i kvalitetan život.
Kratki tehnički opis:
Armirano betonska konstrukcija i ploče
Termo fasada
Očekivani energetski razred je A+
PVC stolarija
Grijanje: podno – dizalica topline
Klima
Podovi: parket, a u kupaonicama pločice i sanitarije 1. klase
Protuprovalna vrata
Orijentacija: SZ-JZ-JI
Parking: garaža i vanjsko parkirno mjesto
Cijena: garaža, spremište i VPM 330.655€
Kupnja direktno od investitora, ne plaća se porez na promet nekretnina
Svim svojim kupcima osiguravamo BESPLATNO kreditno posredovanje u ishođenju stambenog kredita.
Sve dodatne informacije kao i dogovor oko razgledavanja nekretnine možete dobiti pozivom na broj:
099/6655767 – Krunoslav Črep
”LIBELIN ŠTREBERAJ”
Želite znati više o tajnama tržišta nekretnina? Zanima vas koliko iznosi kapara, ili kako kupiti nekretninu putem kredita i slične teme?
Otkrijte sve to i još mnogo više u “LIBELINOM ŠTREBERAJU”.
Kliknite na link i započnite svoje istraživanje: Libelin Štreberaj.
#velikagorica #gorica #centar #malagorica #chromosovonaselje #visoki brijeg #starigrad #kurilovec #galženica #kupnjastana #novogradnja #novogradnjavelikagorica
PDV uključen u cijenu
Izletište u Lović Prekriškom na južnim obroncima Parka prirode Samoborsko…
€149,000
Prodaje se prekrasna kuća u gradu Korenica, Plitvička jezera veličine…
€300,000
© 2023. | Sva prava pridržana | Libela
Owning a home is a keystone of wealth… both financial affluence and emotional security.
Suze Orman