Prodaje se četverosoban stan od 92,23 m2 na 3. katu NOVOGRADNJA ZADAR
Prodaje se moderan stan površine 92,23 m² u kvalitetnoj novogradnji…
€458,000
10020 Novi Zagreb - zapad, Grad Zagreb, Hrvatska
prodaja
€199,000






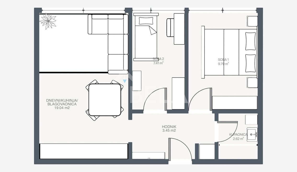
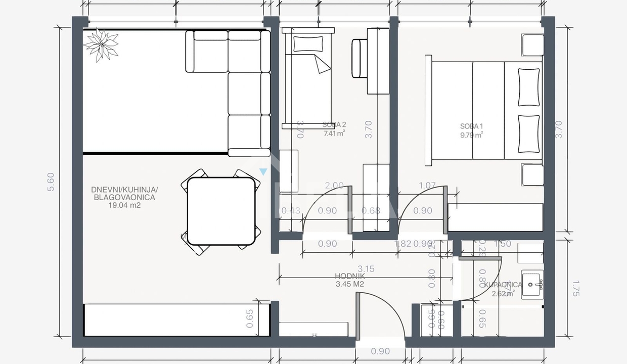
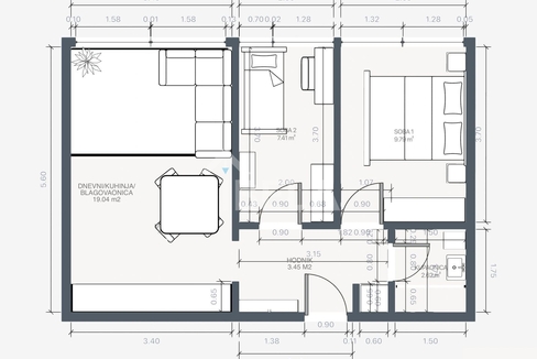
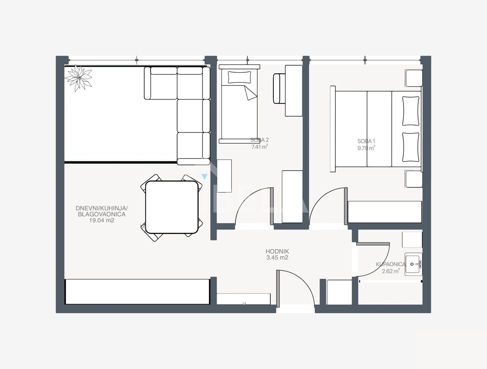
Prodaje se kompletno adaptiran trosoban stan veličine 44 m2 na 14. katu zgrade iz 1972. godine u ulici Aleja pomoraca (Siget).
Završetak adaptacije: 10.3.2026.g.
U ovoj fazi radova kupac može birati pločice, sanitarije…po želji kupca stan može biti dvosoban ili trosoban.
SLIKE SU OD SLIČNOG STANA KOJEG JE VLASNIK ADAPTIRAO NA SIGETU.
Stan se sastoji od ulaznog hodnika, dnevnog boravka, kuhinje i blagavaone formirane u open space koncept, dvije spavaće sobe, zasebne izbe za perilicu rublja i sušilicu te kupaonice.
Prilikom adaptacije bit će promijenjene instalacije u cijelom stanu (struja i voda), postavljena nova protuprovalna vrata, PVC stolarija kao i sva nova sobna vrata, bit će postavljen višeslojni parket sa širokim bijelim lajsnama, potpuno nova kupaonica….
Energetski certifikat: B
Orijentacija stana: istok
Grijanje je na toplanu, a ugrađen je i klima uređaj.
Stan nema vlastito parkirno mjesto, ali postoji mogućnost besplatnog parkiranja ispred zgrade.
Na 5-10 minuta hoda nalaze se svi bitni sadržaji za ugodan život. Javni prijevoz (autobus) nalazi se ispred zgrade.
Uredno vlasništvo, moguća kupovina putem kredita. Priložena građevinska i uporabna dozvola.
Zainteresirani kupci mogu vidjeti gotove adaptirane stanove investitora kako bi dobili dojam uređenja interijera.
https://www.youtube.com/watch?v=TfcPE5Gl_qY
https://www.youtube.com/watch?v=LOTReBL0PAw
https://www.youtube.com/watch?v=3PgX5cImIIk&t=2s
https://www.youtube.com/watch?v=ryZiwQi981M
Svim svojim kupcima osiguravamo BESPLATNO kreditno posredovanje u ishođenju stambenog kredita.
Sve dodatne informacije kao i dogovor oko razgledavanja nekretnine možete dobiti pozivom na broj 095 904 7706 – Martina
”LIBELIN ŠTREBERAJ”
Želite znati više o tajnama tržišta nekretnina? Zanima vas koliko iznosi kapara, ili kako kupiti nekretninu putem kredita i slične teme?
Otkrijte sve to i još mnogo više u “LIBELINOM ŠTREBERAJU”.
Kliknite na link i započnite svoje istraživanje: https://www.youtube.com/playlist?list=PLj2BsZlnaUKjOtSIHX9vVhCxBHC1MIl9y
#Siget #Alejapomoraca #Zagreb #Trnsko #Novizagreb #Novouređeno #novoadaptirano #prilika #najam #prodaja
Prodaje se moderan stan površine 92,23 m² u kvalitetnoj novogradnji…
€458,000
Na prodaju vikend kuća s pogledom – Banfi, Međimurje Prodaje…
€80,000
© 2023. | Sva prava pridržana | Libela
Owning a home is a keystone of wealth… both financial affluence and emotional security.
Suze Orman