građevinsko zemljište u Novom Selu Rok, 983 m2
Na prodaju je građevinsko zemljište u Novom Selu Rok, površine…
€20,000
23000 Zadar, Zadarska, Hrvatska
prodaja
€330,000






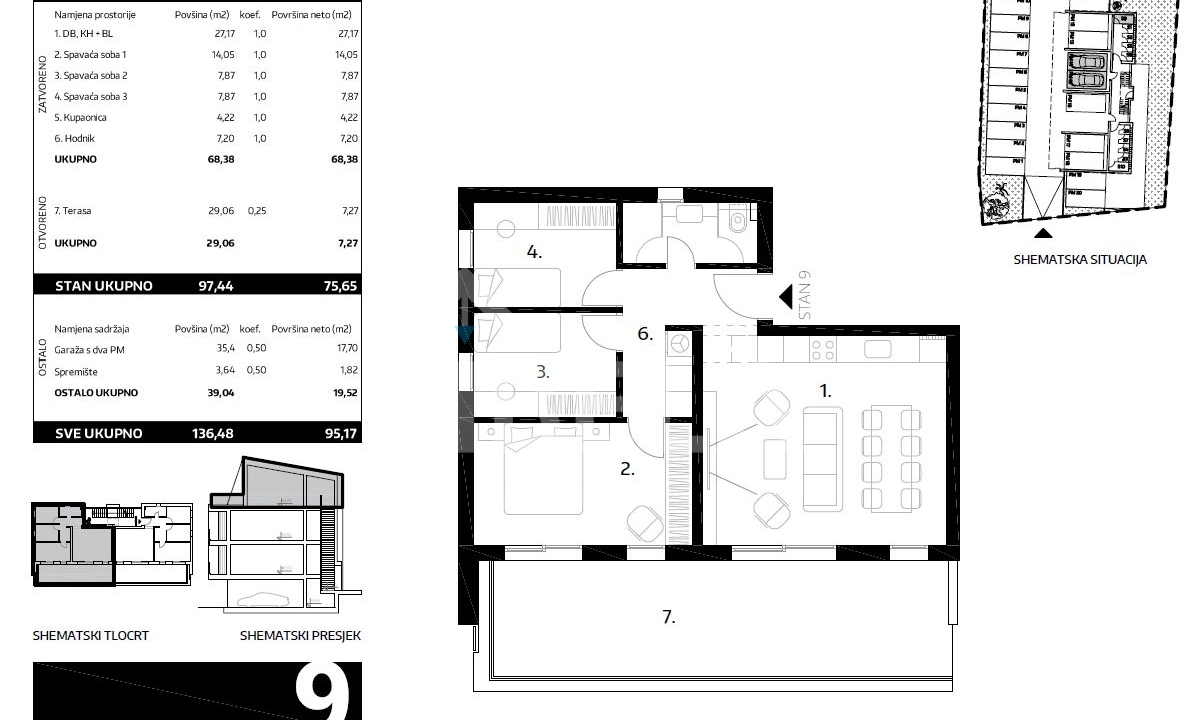
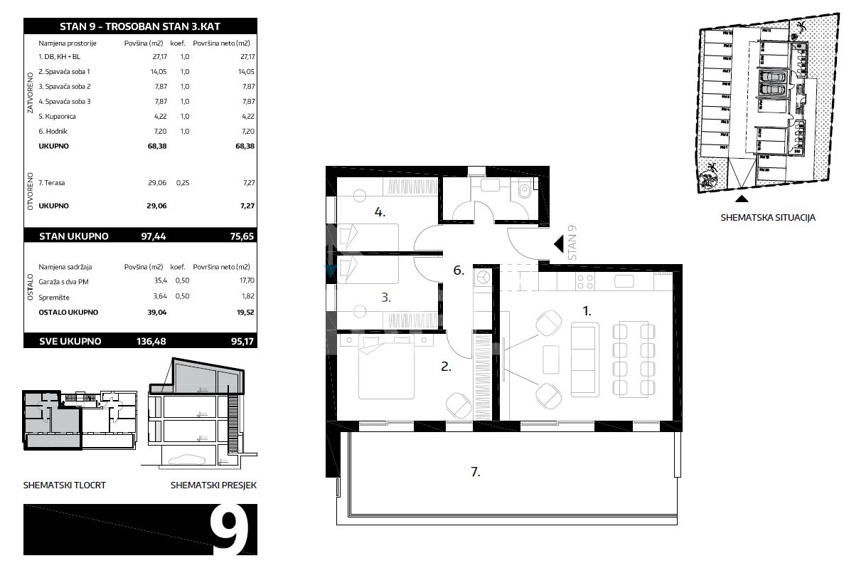
Prodaje se četverosoban stan na 3 katu u novogradnji na Plovaniji – ukupne površine od 95,17 m2, stambene 75,65 m2 s 2 garažna parkirna mjesta u zgradi od 10 stanova.
Stan se sastoji od ulaznog hodnika, kupaone, 2 spavaće sobe, boravka s kuhinjom i blagavaonom (open space), lođe te spremišta.
Lokacija: 1,5 km do mora
Početak gradnje 11/2025.
Predviđeni dovršetak: 7/2026.
Uredno vlasništvo, moguća kupnja putem kredita.
Svim svojim kupcima osiguravamo besplato kreditno posredovanje u ishođenju stambenog kredita.
Sve dodatne informacije kao i dogovor oko razgledavanja nekretnine možete dobiti pozivom na broj:
Martina 091 254 9019
”LIBELIN ŠTREBERAJ”
Želite znati više o tajnama tržišta nekretnina? Zanima vas koliko iznosi kapara, ili kako kupiti nekretninu putem kredita i slične teme?
Otkrijte sve to i još mnogo više u “LIBELINOM ŠTREBERAJU”.
Kliknite na link i započnite svoje istraživanje: Libelin Štreberaj.
#zadar #plovanija #novogradnja #stanovizadar #nekretninezadar #četverosobanstan #investicija #dom #realestate
Na prodaju je građevinsko zemljište u Novom Selu Rok, površine…
€20,000
Prodaje se kamena samostojeća katnica površine 70 m2 smještena na…
€65,000
© 2023. | Sva prava pridržana | Libela
Owning a home is a keystone of wealth… both financial affluence and emotional security.
Suze Orman