Grebaštica – trosobni apartman u blizini mora
Prodajemo apartmane u novoizgrađenom kompleksu u Grebaštici 200 metara od…
€197,000
23000 Zadar, Zadarska, Hrvatska
prodaja
€195,000






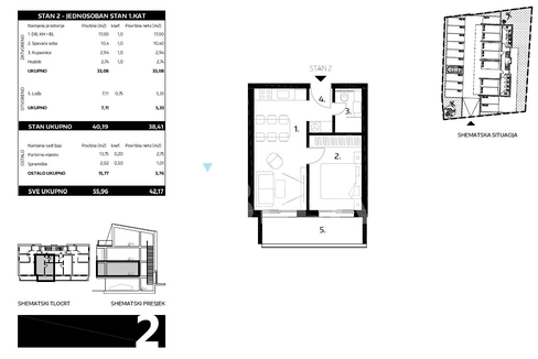
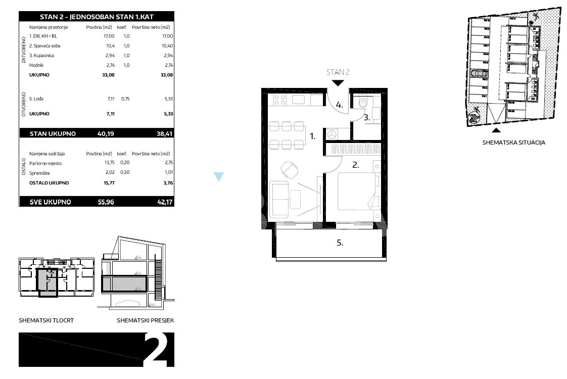
Prodaje se dvosoban stan na 1 katu u novogradnji na Plovaniji – ukupne površine od 42,17 m2, stambene 38,41 m2 s 1 vlastitim parkirnim mjestom u zgradi od 10 stanova.
Stan se sastoji od ulaznog hodnika, kupaone, 1 spavaće sobe, boravka s kuhinjom i blagavaonom (open space), lođe te spremišta.
Lokacija: 1,5 km do mora
Početak gradnje 11/2025.
Predviđeni dovršetak: 7/2026.
Uredno vlasništvo, moguća kupnja putem kredita.
Svim svojim kupcima osiguravamo besplato kreditno posredovanje u ishođenju stambenog kredita.
Sve dodatne informacije kao i dogovor oko razgledavanja nekretnine možete dobiti pozivom na broj:
Martina 091 254 9019
”LIBELIN ŠTREBERAJ”
Želite znati više o tajnama tržišta nekretnina? Zanima vas koliko iznosi kapara, ili kako kupiti nekretninu putem kredita i slične teme?
Otkrijte sve to i još mnogo više u “LIBELINOM ŠTREBERAJU”.
Kliknite na link i započnite svoje istraživanje: Libelin Štreberaj.
#zadar #plovanija #novogradnja #stanovizadar #nekretninezadar #dvosobanstan #investicija #dom #realestate
Prodajemo apartmane u novoizgrađenom kompleksu u Grebaštici 200 metara od…
€197,000
Prodaje se građevinsko zemljište površine 622 m2 s kućom i…
€400,000
© 2023. | Sva prava pridržana | Libela
Owning a home is a keystone of wealth… both financial affluence and emotional security.
Suze Orman