Poslovni prostor (670 m2) sa parkiralištem (700 m2), Savica, 1.200.000 EUR
Prodaje se poslovni prostor od 669,60 m2 u poslovnoj zgradi…
€1,200,000
23000 Zadar, Zadarska, Hrvatska
prodaja
€260,000






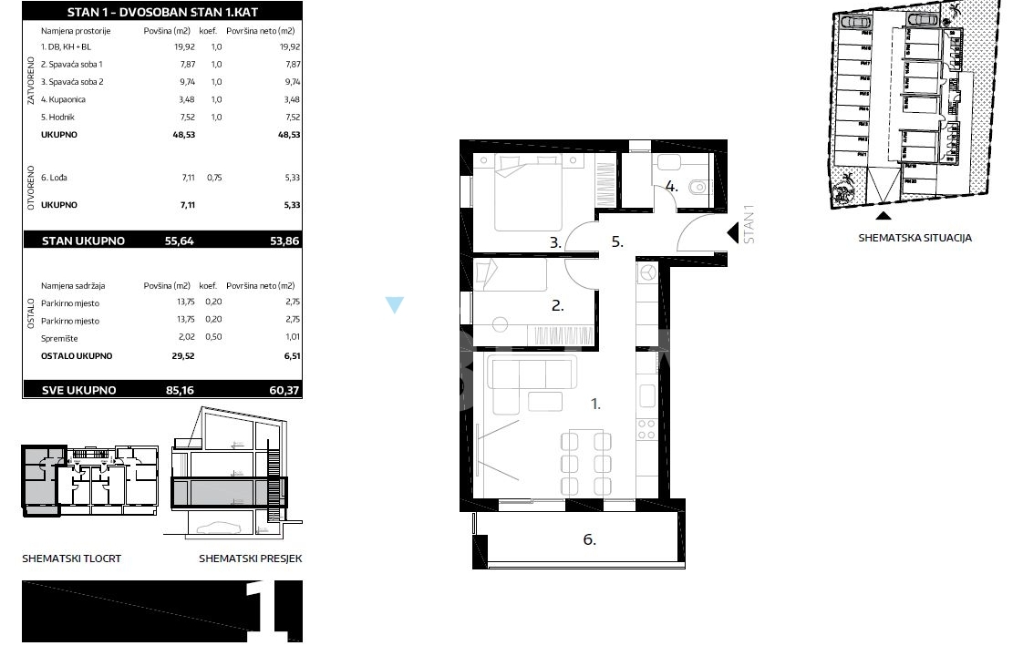
Prodaje se trosoban stan na 1 katu u novogradnji na Plovaniji – ukupne površine od 60 m2, stambene 53,86 m2 s 2 vlastita parkirna mjesta u zgradi od 10 stanova.
Stan se sastoji od ulaznog hodnika, kupaone, 2 spavaće sobe, boravka s kuhinjom i blagavaonom (open space), lođe te spremišta.
Lokacija: 1,5 km do mora
Početak gradnje 11/2025.
Predviđeni dovršetak: 7/2026.
Uredno vlasništvo, moguća kupnja putem kredita.
Svim svojim kupcima osiguravamo besplato kreditno posredovanje u ishođenju stambenog kredita.
Sve dodatne informacije kao i dogovor oko razgledavanja nekretnine možete dobiti pozivom na broj:
Martina 091 254 9019
”LIBELIN ŠTREBERAJ”
Želite znati više o tajnama tržišta nekretnina? Zanima vas koliko iznosi kapara, ili kako kupiti nekretninu putem kredita i slične teme?
Otkrijte sve to i još mnogo više u “LIBELINOM ŠTREBERAJU”.
Kliknite na link i započnite svoje istraživanje: Libelin Štreberaj.
#zadar #plovanija #novogradnja #stanovizadar #nekretninezadar #trosobanstan #investicija #dom #realestate
Prodaje se poslovni prostor od 669,60 m2 u poslovnoj zgradi…
€1,200,000
VIR – TOROVI NOVOGRADNJA 2025. – trosoban apartman na II.…
€165,000
© 2023. | Sva prava pridržana | Libela
Owning a home is a keystone of wealth… both financial affluence and emotional security.
Suze Orman