Pag, poljoprivredno zemljište pogodno za uzgoj maslina i vinove loze
Na prodaju je prostrano poljoprivredno zemljište površine 92.025 m², smješteno…
€920,000
10000 Črnomerec, Grad Zagreb, Hrvatska
prodaja
€339,360

























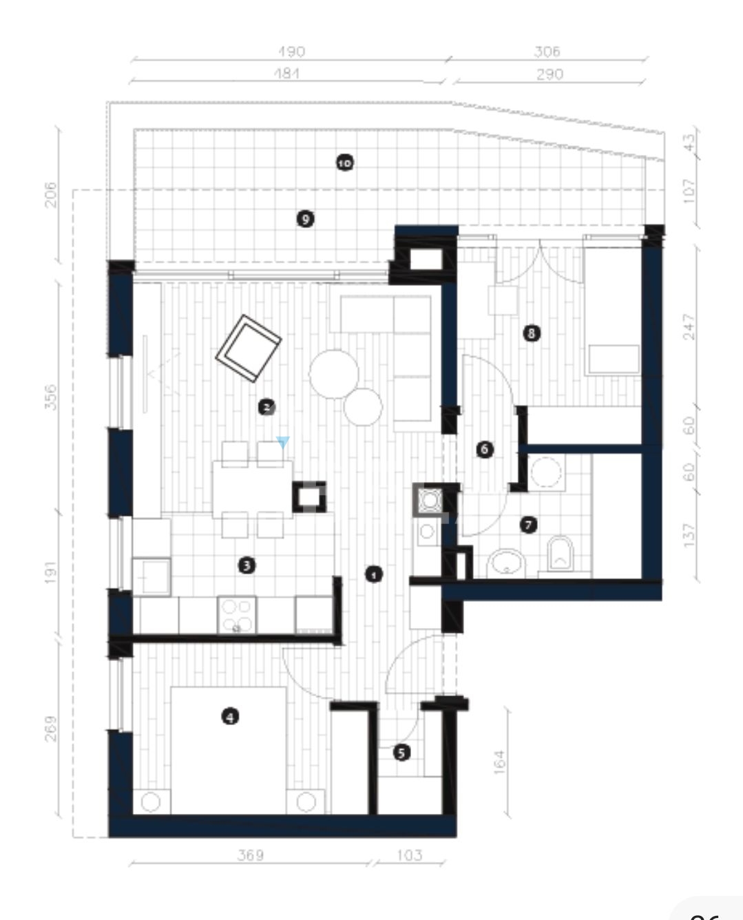
Zagreb, Črnomerec, luksuzna novogradnja, prodaja penthousa u zgradi s liftom, nalazi se na 4. katu i prostire se na 60,60 m² stambene površine. Stan nudi odličnu kombinaciju kompaktnog i funkcionalnog rasporeda, s idealno iskorištenim prostorom za ugodan život.
Zgrada se sastoji od samo 11 stanova čime pruža privatnost i mirno okruženje, uz vrhunsku opremu i kvalitetu gradnje prema najvišim standardima struke.
Ovaj projekt smješten je u srcu Črnomerca, jedne od poželjnijih i dinamičnijih zagrebačkih četvrti, nudeći svojim stanovnicima savršenu ravnotežu između mirnog obiteljskog života okruženog prirodom i blizine svih ključnih gradskih sadržaja.
Ova ulica odiše šarmom Zagreba, uz dostupnost suvremenih pogodnosti.
Raspored stana:
Prostrani dnevni boravak s blagovaonom (17,50 m²) – nudi udobnost i praktičnost za svakodnevni život, s direktnim izlazom na natkrivenu terasu
Kuhinja (7,20 m²) – pametno dizajnirana u sklopu dnevnog boravka i blagovaone, pruža dovoljno radne površine i prostora za pohranu.
Hodnik (3 m²) – praktičan s dovoljno prostora za odlaganje.
Kupaonica (5 m²) – moderna i elegantna, opremljena Villeroy & Boch sanitarijama.
2 spavaće sobe (9,40 i 8,90 m²) – dovoljno prostrane s mogućnošću izlaza na lođu.
Stan nudi savršenu kombinaciju moderne arhitekture i prirodnog okruženja, s dodatnim pogodnostima poput garažnog parkirnog mjesta i spremišta (opcionalno). Od opreme: alu stolarija, električni podizači, protuprovalna vrata, podno plinsko grijanje, klima jedinice, walk in i električne lojtrice. Ravni neprohodni krov, armirano betonski zidovi, zasebna brojila, zvučno izolirano dizalo.
Mogućnost kupnje garažnog parkirnog mjesta za 35.000 EUR ili vanjskog za 20.000 EUR. Kupovina spremišta u prizemlju zgrade također moguća, između 5.000 i 7.000 EUR, ovisno o točnoj kvadraturi.
Sve dodatne informacije kao i dogovor oko razgledavanja nekretnine možete dobiti pozivom na broj:
091 523 1454 Marjan
”LIBELIN ŠTREBERAJ”
Želite znati više o tajnama tržišta nekretnina? Zanima vas koliko iznosi kapara, ili kako kupiti nekretninu putem kredita i slične teme?
Otkrijte sve to i još mnogo više u “LIBELINOM ŠTREBERAJU”.
Kliknite na link i započnite svoje istraživanje: https://www.youtube.com/playlist?list=PLj2BsZlnaUKjOtSIHX9vVhCxBHC1MIl9y
#novogradnja#crnomerec#ekskluzivno#penthouse#rijetkost#prilika
PDV uključen u cijenu
Na prodaju je prostrano poljoprivredno zemljište površine 92.025 m², smješteno…
€920,000
Na prodaju je poljoprivredno zemljište u građevinskoj zoni u Novom…
€55,000
© 2023. | Sva prava pridržana | Libela
Owning a home is a keystone of wealth… both financial affluence and emotional security.
Suze Orman