Vrbovec – građevinsko zemljište 2777 m2
Posredujemo u prodaji građevinskog zemljišta u Vrbovcu. Zemljište je…
€59,000
Podsused - Vrapče, Grad Zagreb, Hrvatska
prodaja
€229,000






















Posredujemo u prodaji poludovršenog stana u urbanoj vili iznad Gajnica.
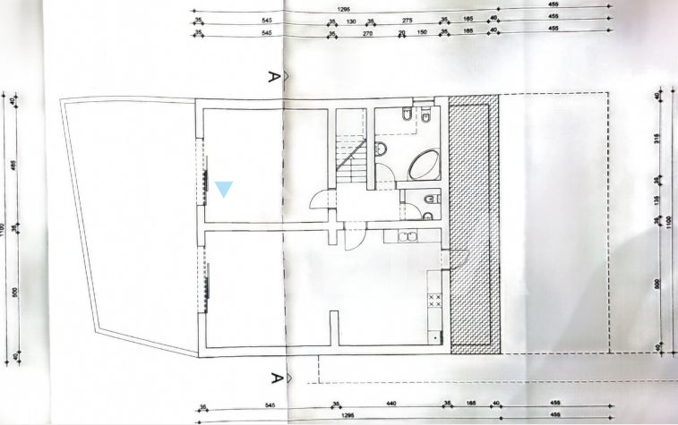
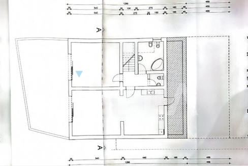
Stan se nalazi u mirnoj ulici u urbanoj vili od 3 stana i zauzima prizemlje i prvi kat.
Glavni ulaz je na prvom katu, gdje se nalazi ulazni hodnik, spavaća soba, kupaonica sa tuškabinom i parnom kupelji i velika loggia – fizička površina 51,60 m2, obračunska površina 47,70 m2.
Stepenište vodi na prizemlje, koje se sastoji od hodnika, velike kupaonice sa masažnom kadom, dodatnog toaleta, spremišta, spavaće sobe i open space prostora namijenjenog za kuhinju, blagovaonicu i dnevnu sobu.
Iz spavaće sobe i dnevnog boravka izlazi se na terasu površine 48,38 m2.
Ukupna kvadratura prizemlja je 160,79 m2, a obračunski je to 124,49 m2.
Stanu pripadaju dva vanjska parkirna mjesta, površine 25 m2, obračunski 5 m2.
Ukupna površina nekretnine je 237,39 m2, a obračunski 177,19.
Gornji kat je u potpunosti završen, a na prizemlju su postavljene pločice u kupaonici i toaletu, a u ostatku su glazure – treba postaviti parkete.
Kako je zgrada sagrađena 2009. godine, a u stanu nitko nije stanovao, potrebno je obnoviti unutarnje uređenje, odnosno i završiti ga na prizemlju.
Sprovedeni voda, struja i plin. Postavljen novi atmosferski bojler.
Spavaće sobe je moguće podijeliti u dvije, a stan je moguće i odvojiti i napraviti dva stana. U tom slučaju svakom stanu bi pripalo jedno parkirno mjesto.
Vrlo povoljna cijena u odnosu na današnje tržište.
Preostala dva stana u zgradi su završena i useljena.
Za sve dodatne informacije i organiziranje razgleda, stojimo na raspolaganju.
Dag
091 6300 616.
Svim našim kupcima osiguravamo BESPLATNO kreditno posredovanje kako bismo vam olakšali proces ishođenja stambenog kredita.
Želite li znati više o tajnama tržišta nekretnina? Zanima vas koliko iznosi kapara, ili kako kupiti nekretninu putem kredita i slične teme? Otkrijte sve to i još mnogo više u “LIBELINOM ŠTREBERAJU”. Kliknite na link i započnite svoje istraživanje: https://www.youtube.com/playlist?list=PLj2BsZlnaUKjOtSIHX9vVhCxBHC1MIl9y
Posredujemo u prodaji građevinskog zemljišta u Vrbovcu. Zemljište je…
€59,000
Na prodaju je građevinsko zemljište pravilnog oblika površine 1773 m2…
€37,000
© 2023. | Sva prava pridržana | Libela
Owning a home is a keystone of wealth… both financial affluence and emotional security.
Suze Orman