Zagreb, garsonjera na 3. katu, Maksimir top lokacija, jug, spremište
Prodaja garsonjere – Zagreb, Kvart Maksimir Na prodaju je namještena garsonjera…
€120,000
52342 Svetvinčenat, Istarska, Hrvatska
prodaja
€365,000


























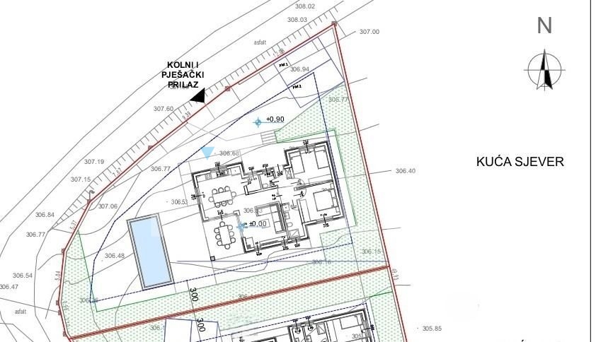
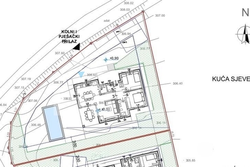
U mirnom i ugodnom okruženju Svetvinčenta prodaje se samostojeća, moderno projektirana prizemnica koja je trenutno u fazi izgradnje, s planiranim završetkom radova tijekom 2026. godine. Kuća nudi 108 m² stambenog prostora smještenog na parceli od 555 m², te predstavlja idealan spoj suvremenog dizajna, funkcionalnosti i privatnosti, okružena prirodom i zelenilom.
Nekretnina se sastoji od natkrivenog ulaza, hodnika i zajedničkog prostora, kuhinje s blagovaonicom i otvorenim dnevnim boravkom, dvije spavaće sobe, kupaonice, zasebnog WC-a te ostave. Orijentacija prema jugozapadu osigurava obilje prirodnog svjetla tijekom cijelog dana i ugodan pogled na okolni krajolik. Interijer je osmišljen moderno i praktično, s naglaskom na udobnost i kvalitetu boravka.
Kuća će biti opremljena podnim grijanjem, toplinskom pumpom i klima uređajem, što jamči ugodnu temperaturu tijekom cijele godine. Prodaje se u potpunosti dovršena i spremna za useljenje, s uređenom okućnicom i bazenom površine 26 m², dok namještaj nije uključen u cijenu.
Dodatne pogodnosti uključuju uređeni vrt, ostavu, video nadzor te osigurana parkirna mjesta. Bazen i vanjski prostor pružaju savršeno mjesto za opuštanje, odmor i uživanje u toplim istarskim danima.
Svetvinčenat je poznat po svojoj bogatoj povijesti, kulturnoj baštini i ugodnom načinu života, a ujedno nudi blizinu svih potrebnih sadržaja poput škole, trgovina i prometnih poveznica. Ova nekretnina idealna je kao obiteljski dom, ali i kao investicija za turistički najam.
Za više informacija nazovite : 095 528 5444 Marko
Prodaja garsonjere – Zagreb, Kvart Maksimir Na prodaju je namještena garsonjera…
€120,000
Posredujemo u prodaji dvosobnog mansardnog stana u Domagojevoj ulici nasuprot…
€210,000
© 2023. | Sva prava pridržana | Libela
Owning a home is a keystone of wealth… both financial affluence and emotional security.
Suze Orman