Kutina, Crkvena ulica – kuća 100m2 na zemljištu 829 m2
Posredujemo u prodaji starije kuće u Crkvenoj ulici u Kutini.…
€100,000
Stenjevec, Grad Zagreb, Hrvatska
prodaja
€233,634









 
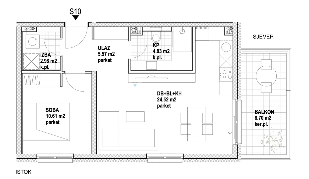
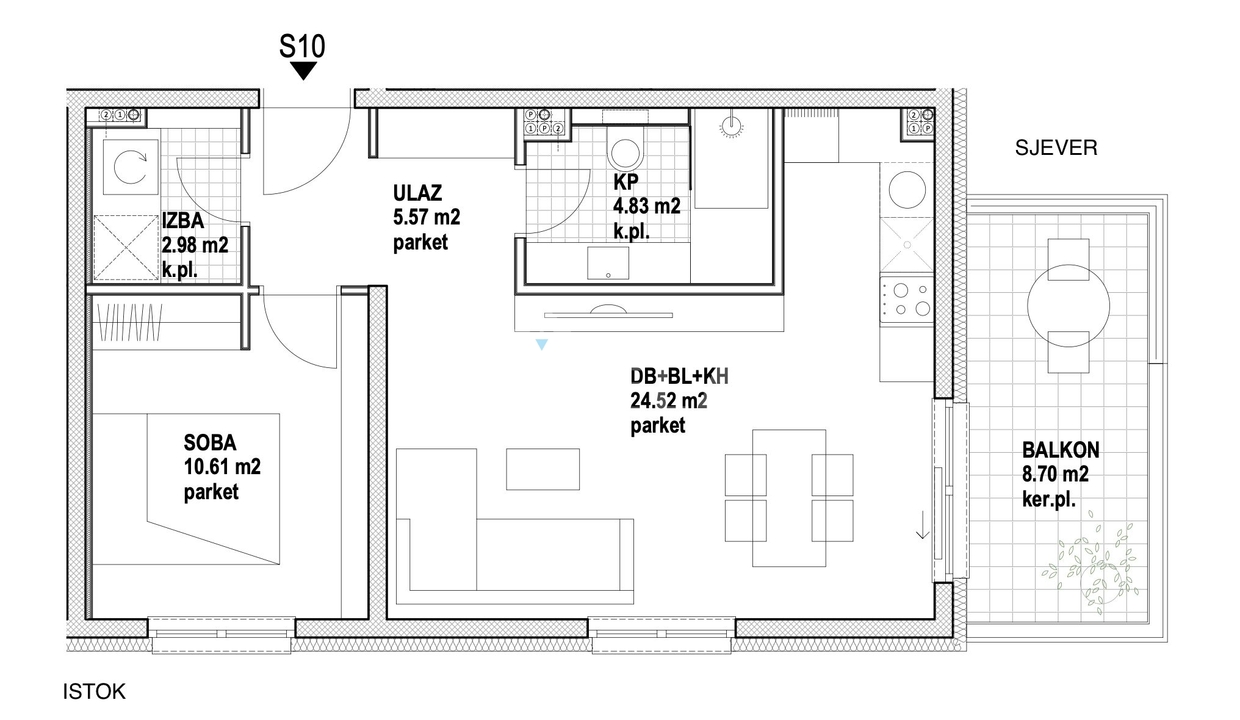
            Prodaje se dvosobni stan s10 površine 51,08 m2 na 2. katu zgrade s liftom.
Useljenje je predviđeno za prosinac 2026. godine.
Stan se sastoji od dnevnog boravka s kuhinjom i blagovaonicom, spavaće sobe, kupaonice s wc-om, ulaznog hodnika, izbe, balkona i spremišta.
O zgradi:
Zgrada je smještena na Samoborskoj cesti u blizini svih sadržaja bitnih za ugodan i kvalitetan život.
Građevina je stambeno poslovne namjene, a sastoji se od 5 etaža: podrum, prizemlje, 1. kat, 2. kat i uvučeni kat.
U podrumu zgrade smještena je garaža sa dvadeset (20 GPM) garažno parkirališnih mjesta te sedamnaest spremišta stanara (17 SPR.)
Svakom stanu pripada balkon ili terasa.
Uvjeti kupnje:
Obavezna kupnja garažnog parkirnog mjesta u podrumu zgrade. Cijena garaže od 23.000€ naviše.
Moguće je kupiti i dodatno vanjsko parkirno mjesto po cijeni od 12.000,00€
Tehnički opis:
Temeljna armirano betonska ploča, debljine 50 cm te lokalnim zadebljanjem od 80 cm, sa svim potrebnim slojevima i hidroizolacijom. Nosiva horizontalna konstrukcija svih etaža – armirano betonske ploče debljine 20 cm osim djela stropne ploče podruma debljine 25 cm.
 Stubišta su armirano betonska debljine 18 cm.
 Zidovi su od A.B. debljine 20, 25 i 30 cm.
Svijetla visina od poda do stropa 260 cm
Termo fasada
PVC vanjska stolarija, trostruko IZO staklom, sa komarnicima, renomiranog proizvođača.
 ALU rolete sa pogonom na elektromotor.
Videoportafon
Grijanje: podno – dizalica topline + ljestve u kupaonici
Klima
Podovi: gotovi hrastovi parket, u sanitarijama su predviđene keramičke pločice I klase – mogućnost odabira
 Na balkonima i terasama predviđene su vanjske protuklizne keramičke pločice. 
KUPAC NE PLAĆA POREZ NA PROMET NEKRETNINA.
Očekivani energetski razred – A
Orijentacija: istok-sjever
Grijanje: dizalica topline
Visina stropa: 260 cm
Parking: garažno parkirno mjesto
Cijena stana: 233.634,00 €
Cijena parkinga: počevši od 23.000€
Svim svojim kupcima osiguravamo BESPLATNO kreditno posredovanje u ishođenju stambenog kredita.
Sve dodatne informacije kao i dogovor oko razgledavanja nekretnine možete dobiti pozivom na broj:
091/5231454 – Marjan
”LIBELIN ŠTREBERAJ”
Želite znati više o tajnama tržišta nekretnina? Zanima vas koliko iznosi kapara, ili kako kupiti nekretninu putem kredita i slične teme?
Otkrijte sve to i još mnogo više u “LIBELINOM ŠTREBERAJU”.
Kliknite na link i započnite svoje istraživanje: Libelin Štreberaj.
#Stenjevec #špansko #malešnica #jankomir
PDV uključen u cijenu
Posredujemo u prodaji starije kuće u Crkvenoj ulici u Kutini.…
€100,000
Na prodaju vikend kuća s pogledom – Banfi, Međimurje Prodaje…
€80,000
© 2023. | Sva prava pridržana | Libela
Owning a home is a keystone of wealth… both financial affluence and emotional security.
Suze Orman