Maslinik, otok Krk, pored Vrbnika, 12.000 m2, 280 stabala
Prodaje se maslinik na atraktivnoj lokaciji pored Vrbnika, cca 280…
€195,000
23000 Zadar, Zadarska, Hrvatska
prodaja
€150,000








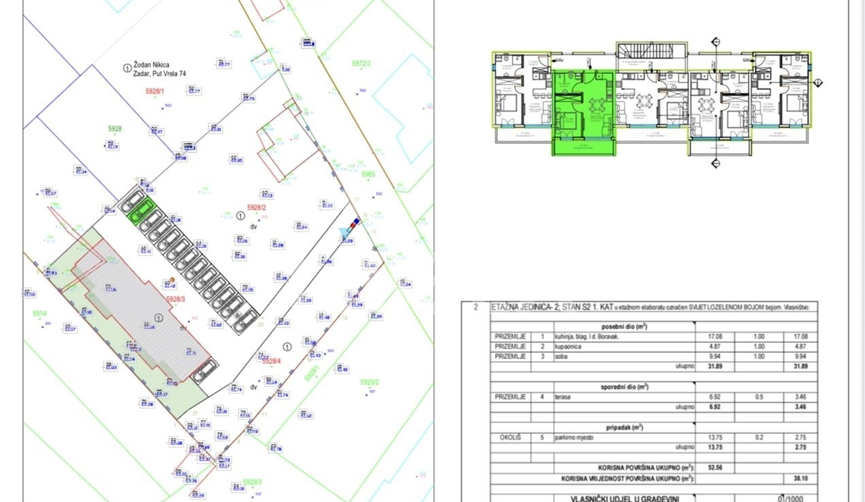
Prodaje se dvosoban stan na 1 katu u novogradnji na Bokanjcu – ukupne površine od 52,56 m2, stambene 31,89 m2, terase od 6,92 m2 s 1 vlastitim parkirnim mjestom od 13,75 m2 u zgradi od 11 stanova.
Stan se sastoji od ulaznog hodnika, kupaone, 1 spavaće sobe, boravka s kuhinjom i blagavaonom (open space) te lođe.
Početak gradnje 11/2025.
Predviđeni dovršetak: 7/2026.
Uredno vlasništvo, moguća kupnja putem kredita.
Svim svojim kupcima osiguravamo besplato kreditno posredovanje u ishođenju stambenog kredita.
Sve dodatne informacije kao i dogovor oko razgledavanja nekretnine možete dobiti pozivom na broj:
Martina 091 254 9019
”LIBELIN ŠTREBERAJ”
Želite znati više o tajnama tržišta nekretnina? Zanima vas koliko iznosi kapara, ili kako kupiti nekretninu putem kredita i slične teme?
Otkrijte sve to i još mnogo više u “LIBELINOM ŠTREBERAJU”.
Kliknite na link i započnite svoje istraživanje: Libelin Štreberaj.
#zadar #bokanjac #novogradnja #stanovizadar #nekretninezadar #dvosobanstan #investicija #dom #realestate
Prodaje se maslinik na atraktivnoj lokaciji pored Vrbnika, cca 280…
€195,000
Prodaje se poljoprivredno zemljište u Blaškovcu, površine 2773 m2. Nalazi se…
€13,865
© 2023. | Sva prava pridržana | Libela
Owning a home is a keystone of wealth… both financial affluence and emotional security.
Suze Orman