Zagreb, Resnik, novogradnja s vrtom i loggiom, 38m2, dvosobni
Zagreb, Resnik, jednostavan izlaz na Slavonsku aveniju, novogradnja 38,05 m2, 2s…
€152,200
23000 Zadar, Zadarska, Hrvatska
prodaja
€295,000












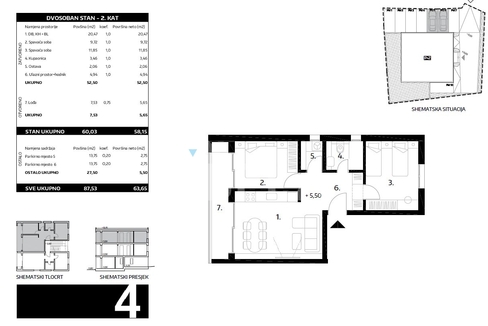
Prodaje se dvosoban stan na 2 katu u novogradnji na Diklu – ukupne površine od 45,82 m2, stambene 43,07 m2 s 1 parkirnim mjestom u zgradi od 5 stanova.
Stan se sastoji od ulaznog hodnika, kupaone, 2 spavaće sobe, boravka s kuhinjom i blagavaonom (open space), ostave te lođe.
Lokacija: 170 m do mora
Početak gradnje 10/2025.
Predviđeni dovršetak: 4/2026.
Uredno vlasništvo, moguća kupnja putem kredita.
Svim svojim kupcima osiguravamo besplato kreditno posredovanje u ishođenju stambenog kredita.
Sve dodatne informacije kao i dogovor oko razgledavanja nekretnine možete dobiti pozivom na broj:
Martina 091 254 9019
”LIBELIN ŠTREBERAJ”
Želite znati više o tajnama tržišta nekretnina? Zanima vas koliko iznosi kapara, ili kako kupiti nekretninu putem kredita i slične teme?
Otkrijte sve to i još mnogo više u “LIBELINOM ŠTREBERAJU”.
Kliknite na link i započnite svoje istraživanje: Libelin Štreberaj
#zadar #diklo #novogradnja #stanovizadar #nekretninezadar #dvosobanstan #investicija #dom #realestate
Zagreb, Resnik, jednostavan izlaz na Slavonsku aveniju, novogradnja 38,05 m2, 2s…
€152,200
Prodaje se samostojeća, obiteljska kuća u Konjščinskoj ulici (Gornja Dubrava)…
€350,000
© 2023. | Sva prava pridržana | Libela
Owning a home is a keystone of wealth… both financial affluence and emotional security.
Suze Orman