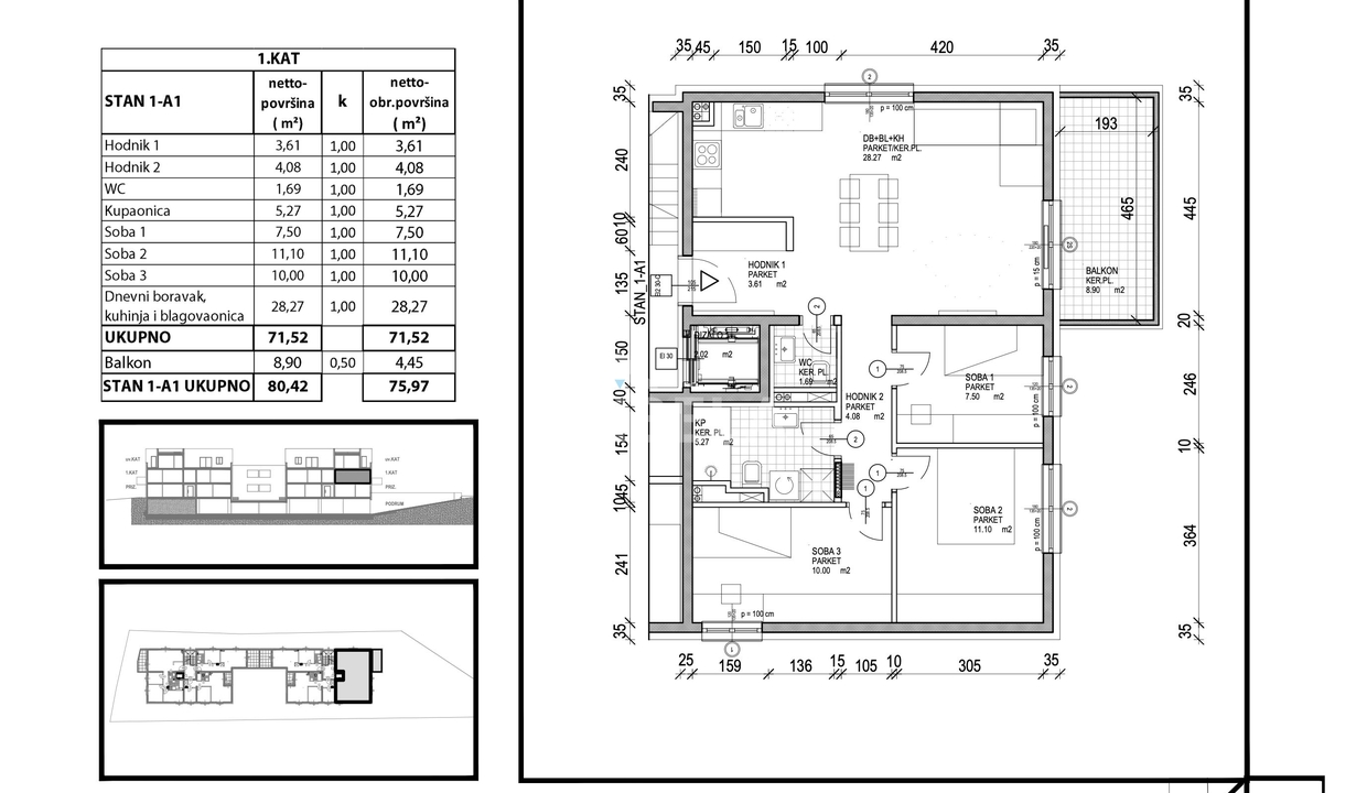
Krunoslav Črep