Novija kuća sa dva stana-2 km od Čakovca
Prodaje se obiteljska kuća u blizini grada netto površine 269m2…
€250,000
23000 Zadar, Zadarska, Hrvatska
prodaja
€295,000














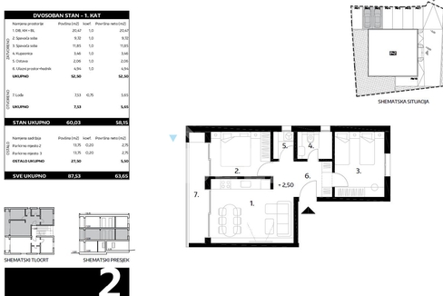
Prodaje se trosoban stan na 1 katu u novogradnji na Diklu – ukupne površine od 63,65 m2, stambene 58,15 m2 s 2 parkirna mjesta u zgradi od 5 stanova.
Stan se sastoji od ulaznog hodnika, kupaone, 2 spavaće sobe, boravka s kuhinjom i blagavaonom (open space), ostave te lođe.
Lokacija: 170 m do mora
Početak gradnje 10/2025.
Predviđeni dovršetak: 4/2026.
Uredno vlasništvo, moguća kupnja putem kredita.
Svim svojim kupcima osiguravamo besplato kreditno posredovanje u ishođenju stambenog kredita.
Sve dodatne informacije kao i dogovor oko razgledavanja nekretnine možete dobiti pozivom na broj:
Martina 091 254 9019
”LIBELIN ŠTREBERAJ”
Želite znati više o tajnama tržišta nekretnina? Zanima vas koliko iznosi kapara, ili kako kupiti nekretninu putem kredita i slične teme?
Otkrijte sve to i još mnogo više u “LIBELINOM ŠTREBERAJU”.
Kliknite na link i započnite svoje istraživanje: Libelin Štreberaj.
#zadar #diklo #novogradnja #stanoviZadar #nekretninezadar #trosobanstan #investicija #dom #realestate
Prodaje se obiteljska kuća u blizini grada netto površine 269m2…
€250,000
Zagreb, Resnik, jednostavan izlaz na Slavonsku aveniju, novogradnja 80,50 m2, 3s…
€322,000
© 2023. | Sva prava pridržana | Libela
Owning a home is a keystone of wealth… both financial affluence and emotional security.
Suze Orman