GRABROVNIK – ŠARMANTNA KUĆA ZA ODMOR U BLIZINI TERMI SVETI MARTIN
GRABROVNIK – KUĆA ZA ODMOR S UHODANIM NAJMOM, VELIKOM OKUĆNICOM…
€200,000
23234 Vir, Zadarska, Hrvatska
prodaja
€165,000

















VIR – TOROVI
NOVOGRADNJA 2025. – trosoban apartman na II. katu s otvorenim pogledom prema moru
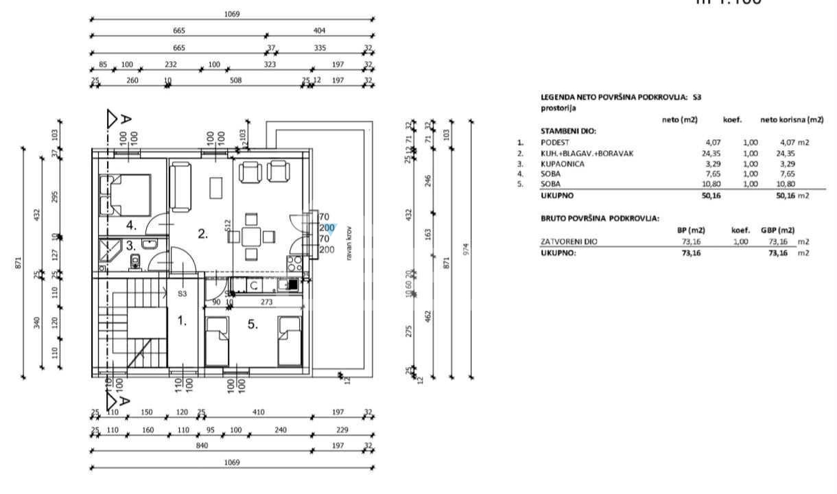
U mirnom dijelu otoka Vira, predio Torovi, prodaje se moderan apartman smješten na I. katu manje stambene zgraden sa prekrasnim otvorenim pogledom prema moru. Ukupna neto površina stambenog dijela iznosi cca 73m² (neto korisne 50,16m²).
Raspored prostorija:
-ulazni prostor
-podest
-prostrani open space: kuhinja + blagovaonica + dnevni boravak (24,35 m²)
-dvije udobne spavaće sobe
-kupaonica
-terasa – idealna za jutarnju kavu i večernja druženja
-vanjsko parkirno mjesto
Lokacija:
Predio Torovi jedan je od traženijih dijelova Vira zbog mirnog okruženja, obiteljskih kuća i blizine plaža. Udaljenost do mora i plaža iznosi cca 600 do 1000 m (ovisno o konkretnoj poziciji), a u blizini se nalaze trgovine, ugostiteljski objekti i svi sadržaji potrebni za ugodan odmor ili cjelogodišnje stanovanje.
Oprema i gradnja:
-klimatizacija
-PVC stolarija s ugrađenim komarnicima i roletama
-električno podno grijanje u kupaonici
-kvalitetna keramika i sanitarije
Dokumentacija je uredna – objekt je završen i u postupku je etažiranje, te ishođenje uporabne dozvole.
Moguća kupnja putem stambenog kredita.
Svim našim kupcima osiguravamo BESPLATNO kreditno posredovanje u postupku ishođenja stambenog kredita.
Za sve dodatne informacije kao i dogovor oko razgledavanja nazovite 098/504-356 ili pošaljite mail: ivica.pozgaj@libela.hr .
—————————————————————————–
VIR – TOROVI
NEW BUILD 2025 – three-room apartment on the second floor with an open sea view
In a quiet part of the island of Vir, in the Torovi area, a modern apartment located on the first floor of a smaller residential building with a beautiful open view of the sea is for sale.
The total net floor area of the residential part is approx. 73m² (net usable area 50,16m²).
Layout of the rooms:
-entrance area
-landing
-spacious open space: kitchen + dining room + living room (24.35 m²)
-two comfortable bedrooms
-bathroom
-terrace – ideal for morning coffee and evening get-togethers
-outdoor parking space
Location
The Torovi area is one of the most sought-after parts of Vir due to its peaceful surroundings, family houses and proximity to the beaches.
The distance to the sea and beaches is approx. 600–1000 m (depending on the exact position), and nearby you will find shops, restaurants and all amenities needed for a pleasant holiday or year-round living.
Equipment and construction:
-air conditioning
-PVC windows with integrated mosquito nets and shutters
-electric underfloor heating in the bathroom
-high-quality tiles and sanitary ware
All documentation is in order – the building is completed and the process of registration of condominium ownership and obtaining the occupancy permit is underway.
Purchase via housing loan is possible.
We provide FREE loan brokerage services to all our clients in the process of obtaining a housing loan.
For all additional information and to arrange a viewing, please call
+385 98/504-356 or send an e-mail to ivica.pozgaj@libela.hr.
—————————————————————————–
VIR – TOROVI
NEUBAU 2025 – 3-Zimmer-Wohnung im 1. Obergeschoss mit offenem Meerblick
In einem ruhigen Teil der Insel Vir, im Ortsteil Torovi, steht eine moderne Wohnung im 1. Stock eines kleineren Wohngebäudes mit wunderschönem Ausblick zum Verkauf. Freien Blick auf das Meer.
Die gesamte Nettofläche des Wohnbereichs beträgt ca. 73m² (netto nutzbare Fläche 50,16m²).
Raumaufteilung:
Eingangsbereich
-Podest
-großzügiger Open-Space-Bereich: Küche + Esszimmer + Wohnzimmer (24,35 m²)
-zwei komfortable Schlafzimmer
-Badezimmer
Terrasse – ideal für den Morgenkaffee und gesellige Abende
-Außenstellplatz
Lage:
Der Ortsteil Torovi gehört zu den gefragteren Lagen auf Vir, aufgrund der ruhigen Umgebung, der Einfamilienhäuser und der Nähe zu den Stränden.
Die Entfernung zum Meer und zu den Stränden beträgt ca. 600–1000 m (je nach genauer Lage). In der Nähe befinden sich Geschäfte, Restaurants und alle Infrastruktur, die man für einen angenehmen Urlaub oder ganzjähriges Wohnen benötigt.
Ausstattung und Bauweise:
-Klimaanlage
-PVC-Fenster mit integrierten Insektenschutzgittern und Rollläden
-elektrische Fußbodenheizung im Badezimmer
-hochwertige Fliesen und Sanitärausstattung
Die Unterlagen sind in Ordnung – das Gebäude ist fertiggestellt, die Begründung von Wohnungseigentum sowie die Erteilung der Nutzungsbewilligung sind im Gange.
Ein Kauf mittels Wohnkredit ist möglich.
Allen unseren Kunden bieten wir KOSTENLOSE Kreditvermittlung im Rahmen der Beantragung eines Wohnkredits an.
Für weitere Informationen und zur Vereinbarung eines Besichtigungstermins rufen Sie bitte an +385 98/504-356 oder senden Sie eine E-Mail an ivica.pozgaj@libela.hr.
GRABROVNIK – KUĆA ZA ODMOR S UHODANIM NAJMOM, VELIKOM OKUĆNICOM…
€200,000
Posredujemo u prodaji poslovnog prostora na Borovju. Prostor se…
€349,000
© 2023. | Sva prava pridržana | Libela
Owning a home is a keystone of wealth… both financial affluence and emotional security.
Suze Orman